VRC-W 600 Premium
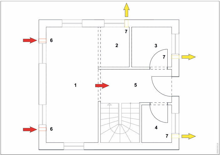
Κεντρική μονάδα αερισμού με υψηλή ανάκτηση και εξαιρετικά χαμηλό θόρυβο – ιδανική για νέα κατοικία με δίκτυο αεραγωγών.

Ο σωστός αερισμός κατοικίας παρέχει φρέσκο, φιλτραρισμένο αέρα, ελέγχει υγρασία/οσμές και ελαχιστοποιεί θερμικές απώλειες μέσω ανάκτησης θερμότητας. Επιλέξτε ανάμεσα σε κεντρικό και αποκεντρωμένο σύστημα HRV ανάλογα με τη χρήση και τον χώρο σας.
| Κριτήριο | Κεντρικός αερισμός | Αποκεντρωμένος αερισμός |
|---|---|---|
| Εγκατάσταση | Απαιτεί δίκτυο αεραγωγών. Ιδανικός σε νέα κατοικία ή ολική ανακαίνιση. | Χωρίς δίκτυο· ελάχιστες επεμβάσεις. Ιδανικός για ανακαινίσεις και μεμονωμένους χώρους. |
| Κάλυψη | Ομοιόμορφος αερισμός όλων των ζωνών με μία μονάδα. | Ευελιξία ανά δωμάτιο. Επεκτείνεται σταδιακά. |
| Απόδοση HRV | Πολύ υψηλή ανάκτηση, ενιαία φίλτρα. | Καλή έως πολύ καλή ανά μονάδα. |
| Θόρυβος | Εξαιρετικά χαμηλός με σωστή μελέτη/ηχομόνωση δικτύου. | Χαμηλός τοπικά· προσοχή σε τοίχους/διελεύσεις. |
| Συντήρηση | Κεντρική αλλαγή φίλτρων 1–2 φορές/έτος. | Αλλαγή φίλτρων σε κάθε συσκευή. |
| Κόστος | Υψηλότερο αρχικό (μονάδα + δίκτυα), χαμηλό λειτουργικό. | Χαμηλότερο αρχικό ανά δωμάτιο· κλιμακώνεται με πολλές μονάδες. |





Κεντρική μονάδα αερισμού με υψηλή ανάκτηση και εξαιρετικά χαμηλό θόρυβο – ιδανική για νέα κατοικία με δίκτυο αεραγωγών.
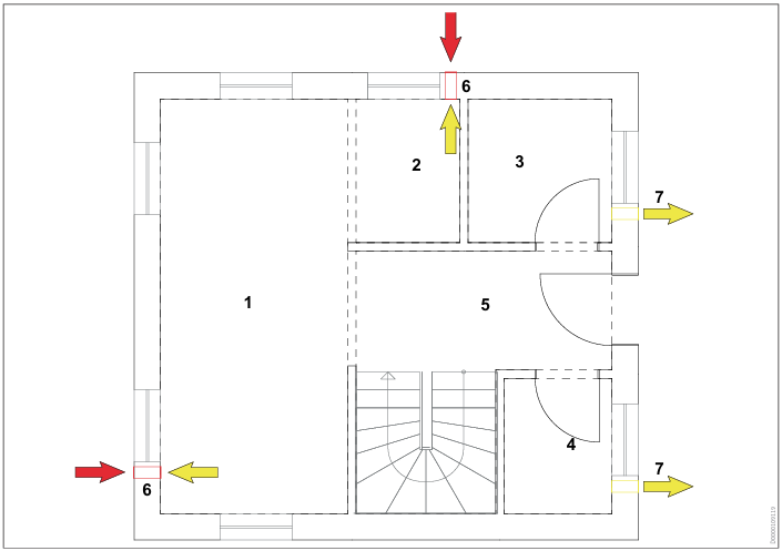
Αποκεντρωμένη μονάδα τοίχου με HRV – η έξυπνη λύση για ανακαινίσεις και μεμονωμένους χώρους.
Συμπαγής κεντρική λύση με ανάκτηση θερμότητας για high-end κατοικίες και διαμερίσματα.
Κεντρική μονάδα HRV για μικρότερες κατοικίες/ανακαινίσεις με αξιόπιστη απόδοση.
Ο κεντρικός χρησιμοποιεί μία μονάδα και δίκτυο αεραγωγών για όλο το σπίτι. Ο αποκεντρωμένος είναι επιτοίχιος και τοποθετείται ανά δωμάτιο χωρίς δίκτυα.
Αλλαγή φίλτρων 1–2 φορές/έτος. Συνιστούμε ePM1 για εισαγωγή (PM2.5/γύρη) και ePM10 στην απαγωγή όπου απαιτείται.
Χαμηλές ταχύτητες, σωστή ηχομόνωση/σιγαστήρες σε κεντρικά δίκτυα και προσεκτική διάνοιξη τοίχου στις αποκεντρωμένες μονάδες.
Συνήθως όχι για αποκεντρωμένες μονάδες (τοπικές διαμπερείς διανοίξεις). Για κεντρικά δίκτυα, απαιτείται μελέτη/συνεννόηση με τον μηχανικό του έργου.
Κεντρικά: υψηλότερο αρχικό (μονάδα + δίκτυα) αλλά ενιαία συντήρηση. Αποκεντρωμένα: χαμηλότερο ανά χώρο, επεκτάσιμα σταδιακά.
Ναι. Ο αερισμός εξασφαλίζει ποιότητα αέρα, ενώ η αντλία θερμότητας αναλαμβάνει θέρμανση/δροσισμό και ΖΝΧ. Υπάρχουν και integral λύσεις.